Terrain à bâtir - à vendre - 4351 Remicourt Hodeige - 184.900 €

Description

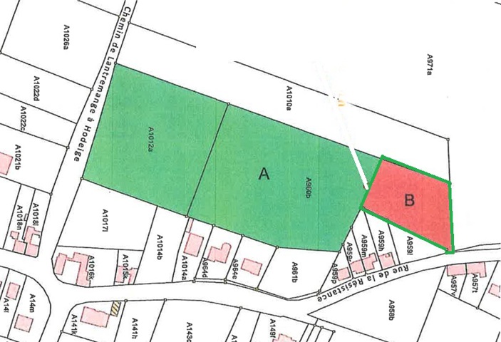
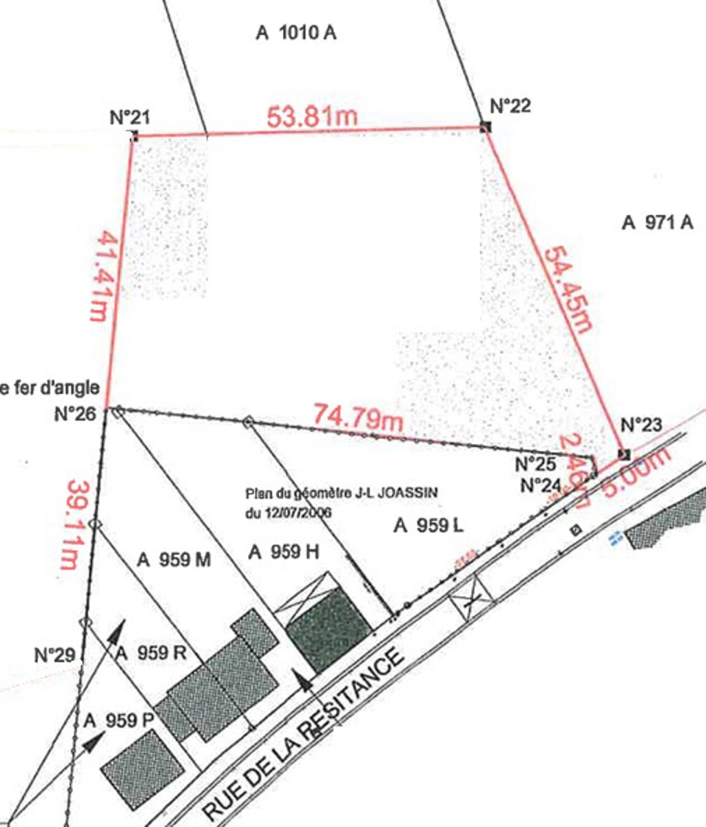
Situé dans le village paisible de Hodège (Remicourt), à proximité des commodités, terrain plat et délimité par géomètre, d’une superficie totale de 3.041 m². Libre de constructeur et de construction, non situé dans un lotissement. Construction possible à 17 m de la voirie. Zone constructible de 10 m sur 15 m (1 étage + sous-toiture). Bonne orientation (sud), parcelle non polluée, raccordement à l’égout et à l’électricité à rue. Vous cherchez un terrain pour construire une villa et profiter d’être en retrait de la voirie ? Celui-ci est fait pour vous ! Il conviendra également aux amoureux de la nature et des grands espaces. Actuellement exploité par le fermier voisin (libre à l'acte). Prix demandé : 184.900 €, soit 61 €/m² ! À saisir ! (R.C. net : 24 €). Tél. : 04/246.33.46 ou 0477/64.69.38 (Angelo PONENTE) Informations non contractuelles et données fournies à titre indicatif.

Adresse

Rue De La Résistance 206 - 4351 Remicourt Hodeige

Général

Référence 7193996
Catégorie Terrain à bâtir
Surface du terrain 3041 m²
Disponibilité à l'acte

Coûts & Frais

Sous régime TVA Non

Domaine juridique

servitude Non
Jugement en cours Non
destination bâtiment privé - unifamilial
Droit de préemption Non
affectation urbanistique zone d'habitat
Intimation en justice Non

Caractéristiques Principales

profondeur terrain 48 m

Raccordements

égouts Oui
électricité Oui
eau Oui

Spécificités terrain

Type d'environnement calme
Type d'environnement 2 campagne
risque d'inondation pas situé en zone inondable

Cadastre

Surface (ha/a/ca) 3041
Revenu cadastral (€) 24 €

À proximité

Magasins Oui
Ecoles Oui
Transports en commun Oui
Centre sportif Oui
Autoroute Oui
PRENDRE CONTACT POUR LE BIEN : 7193996
Terrain à bâtir 4351 Remicourt Hodeige 184.900 €

Préférences pour les cookies

La protection de vos données personnelles est importante pour nous. C’est pourquoi nous détaillons ci-dessous les différents services et fonctionnalités du site qui utilisent des cookies et nous vous laissons décider des cookies que vous souhaitez autoriser ou refuser.

Veuillez cependant noter que si vous bloquez certains types de cookies, cela pourrait impacter votre expérience de navigation sur notre site ainsi que les fonctionnalités disponibles.

Nous utilisons des cookies fonctionnels obligatoires pour assurer le bon fonctionnement du site. Ils sont, par exemple, nécessaires pour retrouver le résultat d’une recherche ou enregistrer le choix de la langue.

Certaines fonctionnalités, comme l’affichage de vidéos ou de cartes géographiques, sont assurées via des composants externes développés par des partenaires comme YouTube ou Google. Certains composants utilisent des cookies qui sont susceptibles de permettre à ces tiers de suivre le comportement des internautes afin, par exemple, de réaliser du ciblage publicitaire. L’activation de ces fonctionnalités et des cookies associés est donc soumis à votre consentement.